Центр Пластика
ПН-ПТ 8:30-18:00
Производство пластиковых изделий
list@centr-plastik.ru
Мы в социальных сетях:
0
0
0
Корзина заказа
8 (800) 775-96-60 Заказать звонок
  • Меню
  • Каталог
    • Емкости и баки
      • Емкости для воды
      • Баки для душа
      • Емкости для топлива и агрессивных сред
      • Транспортные емкости
      • Емкости для пищевых продуктов
      • Емкости в металлической обрешетке
      • Изотермические емкости
      • Емкости для систем водоподготовки
      • Пожарные резервуары
      • Емкости с мешалкой
      • Емкости с греющим кабелем
      • Емкости с утеплением
      • Мегаемкости
      • Топливные баки и топливные емкости
      • Горизонтальные цилиндрические емкости на опорах
    • Насосные станции
      • Комплектные КНС
      • Насосные станции повышения давления воды
      • Насосные станции водоснабжения частного дома
      • Ливневые насосные станции
      • Комплектующие для КНС
    • Септики и биотуалеты
      • Септики Волгарь
      • Септики Росток
      • Септики Юнилос Астра
      • Накопительные септики серия «А»
      • Дополнительное оборудование для септиков
      • Биотуалеты
    • Дорожные ограждения
      • Пластиковые дорожные конусы
      • Водоналивные барьеры
    • Пластиковые погреба
      • Пластиковые погреба Тортила
      • Пластиковые колодцы Родлекс
      • Пластиковые кессоны
      • Пластиковые вставки в бетонные колодцы
    • Мусоросбросы
      • Секции мусоросбросов
      • Кронштейны для крепления секций
    • Понтоны
      • Модульные понтоны
      • Понтоны для гидроциклов
      • Комплектующие для понтонов
    • Ливневые очистные сооружения (ЛОС)
      • Пескоотделители (ПО)
      • Маслобензоотделители (МБО)
      • Сорбционные блоки (СБ)
      • Комплексные системы очистки (КСО)
  • Решения
    • Септики
    • Ёмкости для воды
    • КНС
    • Пожарные резервуары
    • Понтоны
    • Очистные сооружения
    • Бассейны и купели
    • Пластиковые погреба
    • Дорожные ограждения
  • Калькуляторы
    • Пожарные резервуары
    • Септики и ЛОС
    • КНС
    • Ливневая канализация
    • Бассейны
    • Понтоны
    • Теплоизоляция
    • Балластировка
    • Водоснабжение
    • СПД
    • УЗВ
    • Скруббер
    • TCO
    • Химстойкость
  • Производство
    • Пластиковые ёмкости
    • Стеклопластиковые ёмкости
    • Аквакультура и УЗВ
    • Инженерные сети и КНС
    • Промышленная химия
    • Термоёмкости и ГВС
    • Технологическое оборудование
    • Экология и очистка стоков
    • Пищевая промышленность
  • Кейсы
  • О компании
    • О компании
    • Доставка
    • Оплата
    • Гарантии
    • Контакты
    • Решения
      • Септики
      • Ёмкости для воды
      • КНС
      • Пожарные резервуары
      • Понтоны
      • Очистные сооружения
      • Бассейны и купели
      • Пластиковые погреба
      • Дорожные ограждения
    • Калькуляторы
      • Пожарные резервуары
      • Септики и ЛОС
      • КНС
      • Ливневая канализация
      • Бассейны
      • Понтоны
      • Теплоизоляция
      • Балластировка
      • Водоснабжение
      • СПД
      • УЗВ
      • Скруббер
      • TCO
      • Химстойкость
    • Производство
      • Пластиковые ёмкости
      • Стеклопластиковые ёмкости
      • Аквакультура и УЗВ
      • Инженерные сети и КНС
      • Промышленная химия
      • Термоёмкости и ГВС
      • Технологическое оборудование
      • Экология и очистка стоков
      • Пищевая промышленность
    • Кейсы
    • О компании
      • О компании
      • Доставка
      • Оплата
      • Гарантии
      • Контакты
    Консультация инженера
    8 (800) 775-96-60 бесплатно по РФ Задать вопрос
    О производстве
    • 15+ лет на рынке
    • 500+ наименований продукции
    • Собственное производство
    • Сертификация ТР ТС
    • 14 инженерных калькуляторов
    Главная
    -
    Кейсы
    -
    Нестандартные решения
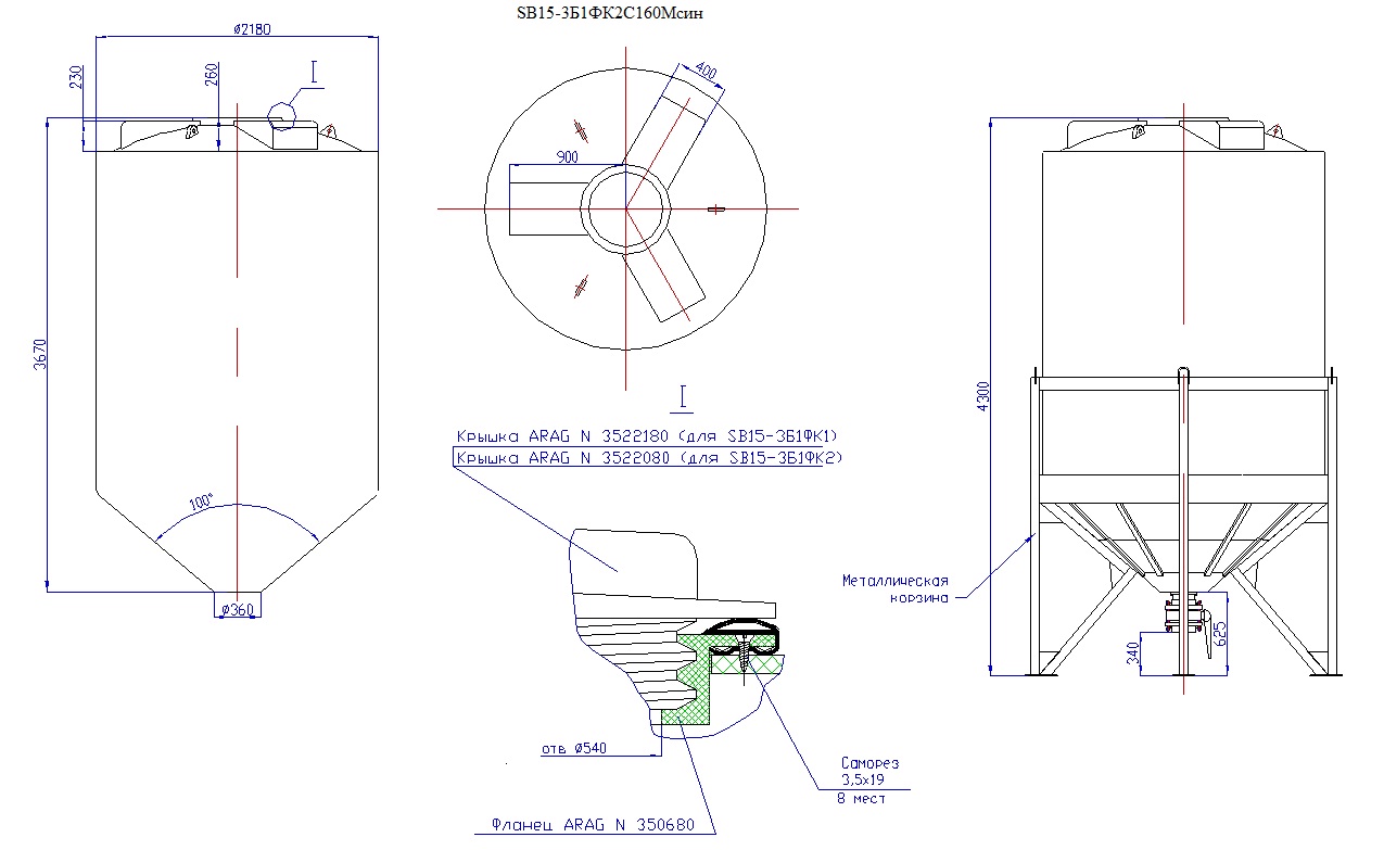
    -Бункер с коническим дном 1 400 л для дозирования реагентов
    Кейсы / Нестандартные решения
    Нестандартные решения

    Бункер с коническим дном 1 400 л для дозирования реагентов

    • Год: 2021
    • Регион: Тульская область
    • Материал: Полипропилен (PP-H)
    • Объём: 1 400 л
    Бункер с коническим дном 1 400 л для дозирования реагентов, Полипропилен (PP-H), 1 400 л

    Химическое производство нуждалось в дозировочном бункере для хранения и гравитационной подачи сыпучих реагентов. Металлические бункеры корродировали от контакта с агрессивными порошками.

    Проблема

    На химическом производстве в Тульской области применялись металлические бункеры для хранения и дозирования сыпучих реагентов. Контакт порошкообразных химикатов с металлом вызывал интенсивную коррозию, продукты которой загрязняли реагенты и нарушали технологический процесс. Требовалась замена на коррозионностойкий материал.

    Условия

    • Объём: 1 400 л
    • Назначение: хранение и гравитационное дозирование сыпучих реагентов
    • Конструктив: полипропилен, конусное дно 60°, опорная рама
    • Среда: агрессивные порошкообразные химикаты (рН 2–12)
    • Регион: Тульская область

    Решение

    Изготовлен полипропиленовый бункер БДС объёмом 1 400 л с коническим дном (угол конуса 60°) на сварной опорной раме. Конусная форма обеспечивает полное опорожнение без застойных зон. Нижний патрубок Ø80 мм с шиберной задвижкой для дозирования. Полипропилен инертен к широкому спектру химических реагентов.

    Результат

    Бункер введён в эксплуатацию и работает без коррозии. Полное опорожнение за счёт конусного дна исключает потери реагентов. Срок службы полипропилена – не менее 25 лет. Год реализации – 2021.

    Технические характеристики

    Тип объектаХимическое производство
    Объём1 400 л
    МатериалПолипропилен (PP-H)
    Срок эксплуатации25+ лет
    РегионТульская область
    Год реализации2021

    Фотографии проекта

    Бункер с коническим дном 1 400 л для дозирования реагентов, Полипропилен (PP-H) — изображение 1

    Связанные материалы

    Нормативная база ГОСТ 32689.1-2014 Подробнее Нормативная база DVS 2205 Подробнее Каталог Каталог нестандартных изделий Смотреть

    Нужно нестандартное изделие?

    Изготовим по вашим чертежам — любой формы, размера и материала

    Оставить заявку
    Центр Пластика
    2026 © Центр Пластика
    Каталог
    • Стандартная продукция
    • Продукция под заказ
    • Ёмкости и баки
    • Септики и биотуалеты
    • Насосные станции
    • Понтоны
    • Пластиковые погреба
    • Очистные сооружения
    Решения и инструменты
    • Калькуляторы
    • Проблемы и решения
    • Кейсы
    • База знаний
    • Септики
    • Ёмкости для воды
    • КНС
    • Пожарные резервуары
    • Понтоны
    • Очистные сооружения
    • Бассейны и купели
    • Пластиковые погреба
    • Дорожные ограждения
    Информация
    • О компании
    • Покупателям
    • География поставок
    • Контакты
    • Политика конфиденциальности
    • Пользовательское соглашение
    8 (800) 775-96-60 Заказать звонок
    Мы в социальных сетях:
    2026 © Центр Пластика
    Мы используем файлы cookie для корректной работы сайта и улучшения сервиса. Продолжая пользоваться сайтом, вы соглашаетесь с политикой конфиденциальности.